Cleanrooms require routine testing, monitoring and certification to ensure that these controlled environments continue to perform in accordance with regulatory standards as detailed in ISO14644, EU GMP & EIST.
Lydair specialise in the testing, validation and certification of cleanrooms to procedures set out in ISO14644-3(2019).
Validation Services:
Airborne Particle Count
Measurement of airflow volume flow rates
Measurement of static pressure differentials
Recovery times & recovery rates
Airflow pattern visualisation
HEPA filter integrity testing
Testing is conducted in accordance with ISO14644-1
Cleanrooms and associated controlled environments.
Part 1: Classification of air cleanliness by particle concentration
EU GMP Annex 1, and IEST.
Results being presented in a test report to ISO14644-1(2015)
Test procedures as ISO14644-3(2019) NA.1
Non-Viable Airborne Particle Counting
Establish the classification of the cleanroom environment by particle concentration as ISO14644-1(2015).



Supply Air Flow Rates
Cleanroom Validation requires the measurement of supply air flow rates and airflow velocities, in accordance with ISO14644-3 :2019. B2.2 & B2.3
At design stage, an estimated “in operation” particle generation and median ventilation coefficient are used to calculate the required volume flow rate as ISO14644-4:2024.




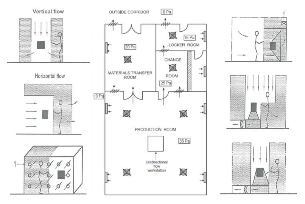
Room Pressures
ISO 14644-3:2019. B1.2
Cleanroom facilities utilise room pressure differentials as part of the air contamination control strategy.

Recovery time / Recovery Rates
A measured local recovery time/rate is a recommended method used to demonstrate effective air contamination control.
Evaluation by 10:1 or 100:1 recovery time
ISO 14644-3:2019. B4.3
Airflow Visualisation Testing
A smoke visualisation test is another recommended method used to demonstrate effective air contamination control.


HEPA Filter Integrity Testing
In situ HEPA Filter Integrity Testing.
Method as detailed in ISO14644-3:2019 adapted from IEST-RP-CC034.4
The leak test establishes the level of leakage, relevant to the cleanliness performance of the installation.
Lydair offer two methods:
Aerosol photometer & Light-scattering airborne-particle counter (LSAPC)
Upstream aerosol challenge Ondina oil or monodisperse PSL.




